SG
Sunroom in a Garden
2017
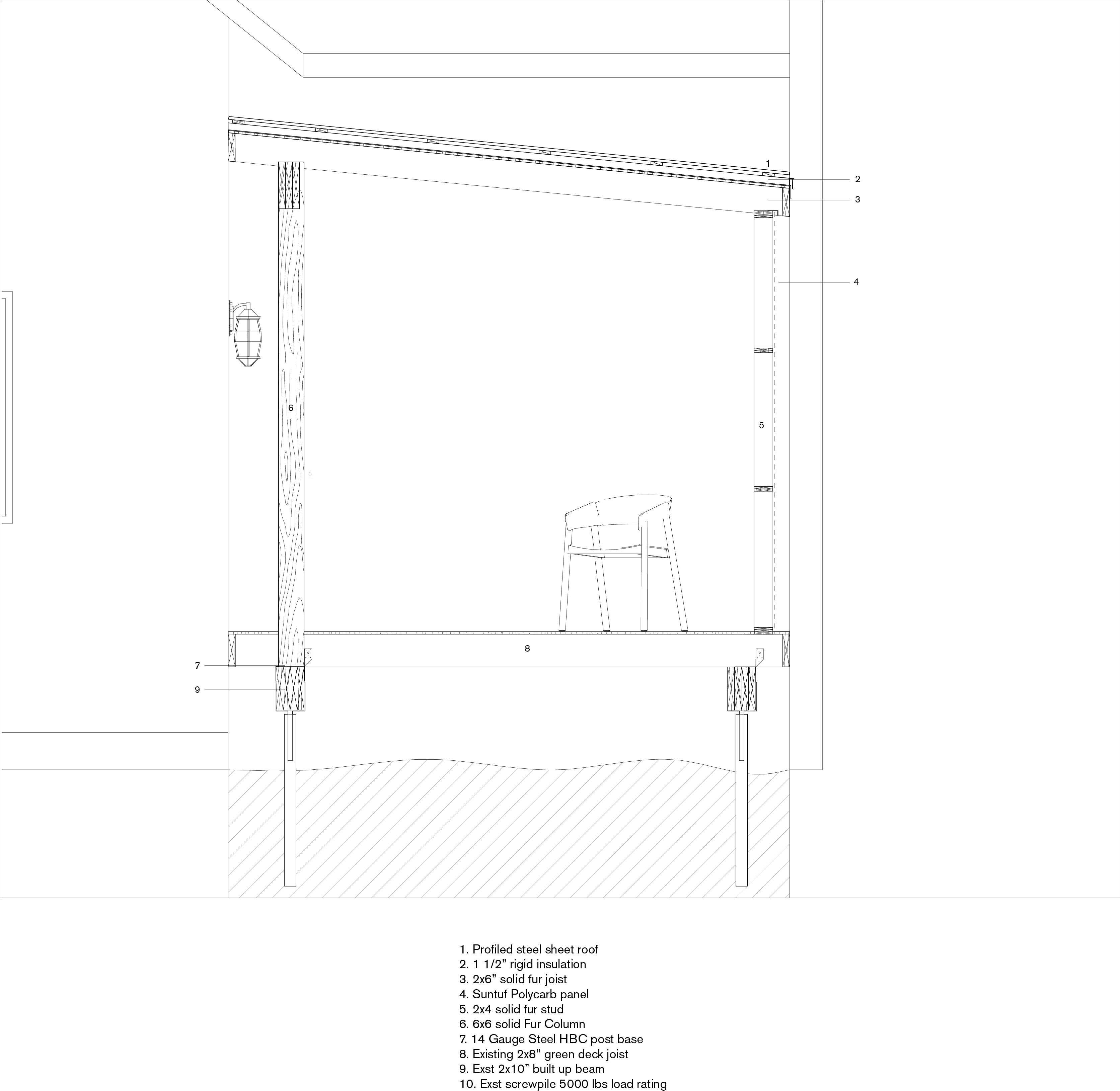
The project was designed and built with IntheMiddle Studio in the summer of 2017. The 150 sq/ft (14 sq/m) sunroom is a three season addition to an existing house. The sunroom blurs the spaces between the home and garden. The curve welcomes sunlight in gradiations and allows the garden, if not metaphorically, to enter into the interior.


